VVE Carmelietenstraat 8
Ik heb even een pagina gemaakt waar we snel over zaken kunnen beslissen. Wil je iets in stemming brengen geef mij het onderwerp en eventueel fotomateriaal en ik maak er een topic van. je stemt in principe anoniem, maar je mag altijd een reactie schrijven onder aan deze pagina.
Hiernaast even wat fotomateriaal en een plattegrond van het nieuwbouwproject, Wal Kwartier, op een site gezet.
Ook even een inschatting er bij gezet hoe ver WALL STAETE van de nieuwbouw af is.
Voorstellen voor verfraaien WALL STAETE
Doen we de wand in de centrale hal volgens voorstel zoals via WhatsApp?
Dit hout, Noten, hebben we ook gebruikt in onze badkamer in Duitsland. Geeft een luxe uitstraling en ruikt erg lekker.
Gaan we de nieuwe moderne kleur gebruiken?

Gaan we ons gebouw een naam geven? Is Wall Staete goed?

Ik ga voor versie:
Toelichting:
klik op foto voor vergroten.
Door het beton in de zelfde kleur van het dak te doen (gecorrodeerd koper kleur) en het weg laten van de wit en lichte grijstinten. is het nu een krachtig gebouw geworden. Een ander voordeel is dat er al mensen zijn die de zonwering al op deze kleur (RAL 6033) hebben.
AANPASSING, op verzoek van Kees en Eric : De betonranden van het Balkon zijn nu de zelfde donkere kleur (RAL 7021) als de kozijnen.
Voor de onderkant heb ik een variant gemaakt die volgens mij beter uitkomt. Door de de staander een zelfde kleur te geven als de kleine tussenstukjes, vormt dit 1 lijn naar boven naar boven met het dak. Als je de onderkant helemaal donker maakt is het niet meer één geheel. Ik heb het aan een paar bevriende architecten laten zien en die kozen allemaal voor de versie met de staander onder in kleur. Het gebouw is een eenheid op die manier en de term fris gebruikte zij ook.
Ik hoor graag jullie mening, Mijn voorkeur zie op de laatste foto. Hoe dan ook, het wordt het mooiste gebouw in de straat!
De details
Kleuren schema nu. Alternatieven




Kozijnen Beton Kleur accenten of Alternatief 1 alternatief 2
Door gebruik te maken van een Epoxy betonverf, trekt er geen vocht meer in de betondelen en blijven deze langer schoon en zijn eenvoudig schoon te maken. Als iemand een beter voorstel heeft voor een kleur, hoor ik dat graag. Maar het dak is nu al groen en deze een compleet andere kleur geven is veel werk en dus duurder.
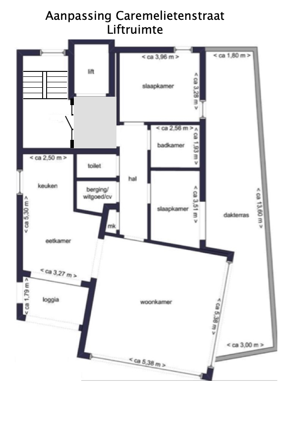
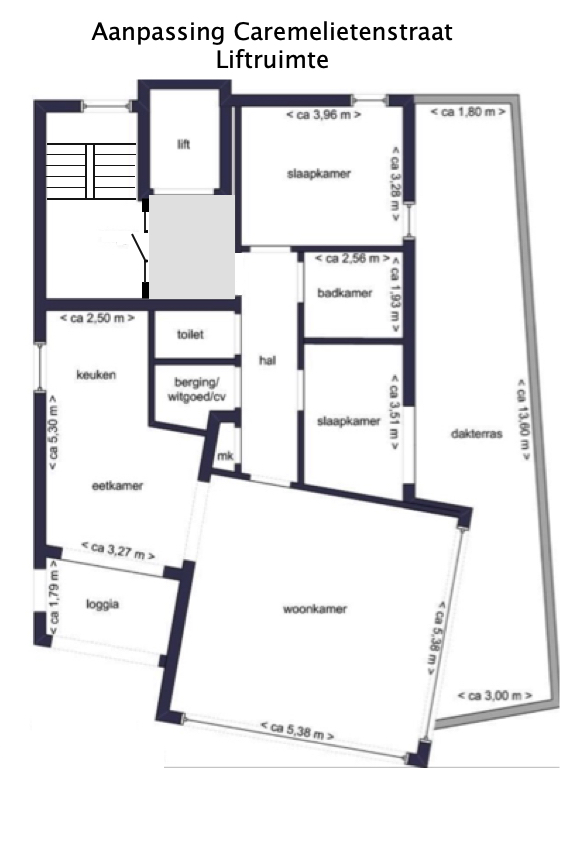
Ombouw liftruimte naar Privé liftruimte / Hal
De mogelijke aanpassing
Ik heb wat materiaal besteld om te kijken wat de mooiste oplossing is voor de besturing van de lift. De huidige 4 knopjes in de lift vervangen door exemplaren met een sleutelbediening. de knop op elke verdieping voorzien van een klein apparaatje dat de liftknop indrukt.
https://www.youtube.com/watch?v=pmUpBRDS3E8
Ik ga een apparaatje plaatsen die via Siri werkt. Dus een voice-command tegen de iPhone is dan genoeg om de lift naar mijn verdieping te krijgen. Naar beneden blijft het zelfde in de lift, dus geen sleutel nodig.
Ik wil graag een nieuw onderwerp in stemming brengen

Opmerking en reacties

Reactie plaatsen
Reacties
We hebben de meerderheid voor de aanpassingen.
Eric van der Ham is erg gehecht aan het groen, ik vond dat groen ook niet verkeerd. Ben nu een ontwerp aan het maken dat het speciale groen toch nog terug komt. Ik heb wel een idee om iedereen tevreden te stellen. Ik heb liever 4 stemmen voor!